NYU LMC Science Building
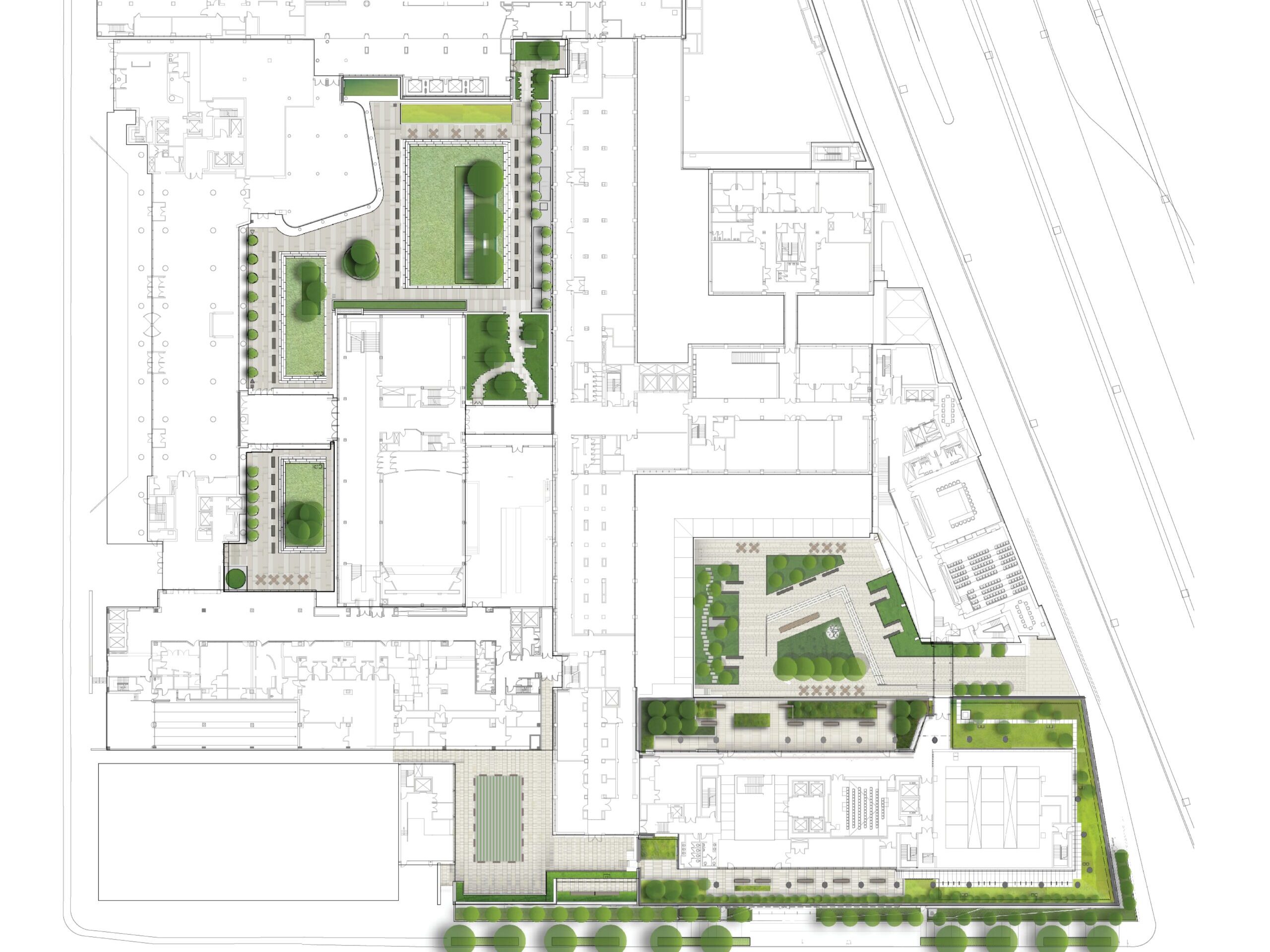
The Science Building is a LEED Platinum research facility located on the NYU Langone Medical Center Campus in Manhattan. The project utilizes the 14,000 SF roof space to restore native habitat and connect fragmented ecosystem corridors along the waterfront. The native green roof supports a diversity of native micro-climates while relying entirely on a built-in reservoir of rainwater for irrigation. Accessible terrace spaces are built into the green roof to provide students and research faculty a place to study or find peace in a high-pressure environment. Terraces are designed as flexible spaces that both furnish the everyday needs of users and afford opportunities for large gatherings during presentations and celebrations.
The landscape for both the Science Building and Alumni Courtyard were designed to be resilient to future flooding. At-grade planting and surface materials were designed to withstand occasional inundation of saltwater. Deployable flood gates and planted berms protect buildings from up to 10 ft. of flood waters.
LEED Platinum Certification
Location:
New York, NY, USA
Project Status:
Completed
Client:
NYU Langone Medical Center Real Estate Development
Collaborators:
Ennead Architects



















